



三通球阀,顾名思义,是一种具有三个球的阀门,旨在调节流体的流量。 它是一种广泛应用于各行业的高效、可靠的工具。 让我们更深入地了解它的功能和优点。
首先,三通球阀的独特设计可以精确控制流量和压力。 这一功能对于石油和天然气、化工和水管理等行业保持安全高效的运营至关重要。 此外,该阀门尺寸紧凑、设计简单,易于安装和维护。
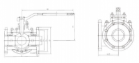
| 选择 | 询价 | Q44F-16C Q44F-16P Q644F-16C Q644F-16P Q944F-16C Q944F-16P Q45F-16C Q45F-16P Q645F-16C Q645F-16P Q945F-16C Q945F-16P | ||||||||
|---|---|---|---|---|---|---|---|---|---|---|
| DN | L | D | D1 | D2 | b | Z- φd | H | W | ||
| 15 | 108 | 95 | 65 | 45 | 14 | 4- φ14 | 95 | 140 | ||
| 20 | 117 | 105 | 75 | 55 | 14 | 4- φ14 | 105 | 160 | ||
| 25 | 127 | 115 | 85 | 65 | 14 | 4- φ14 | 113 | 180 | ||
| 32 | 140 | 135 | 100 | 78 | 16 | 4- φ18 | 135 | 250 | ||
| 40 | 165 | 145 | 110 | 85 | 16 | 4- φ18 | 142 | 300 | ||
| 50 | 178 | 160 | 125 | 100 | 16 | 4- φ18 | 154 | 350 | ||
| 65 | 191 | 180 | 145 | 120 | 18 | 4- φ18 | 175 | 350 | ||
| 80 | 203 | 195 | 160 | 135 | 20 | 8- φ18 | 190 | 400 | ||
| 100 | 229 | 215 | 180 | 155 | 20 | 8- φ18 | 225 | 500 | ||
| 125 | 356 | 245 | 210 | 185 | 22 | 8- φ18 | 245 | 600 | ||
| 150 | 394 | 280 | 240 | 210 | 24 | 8- φ23 | 265 | 800 | ||
| 200 | 457 | 335 | 295 | 265 | 26 | 12- φ23 | 305 | 800 | ||
| 250 | 533 | 405 | 355 | 320 | 30 | 12- φ25 | 370 | 1300 | ||